Квартира в 9-м микрорайоне
02.12.2021
Описание проекта
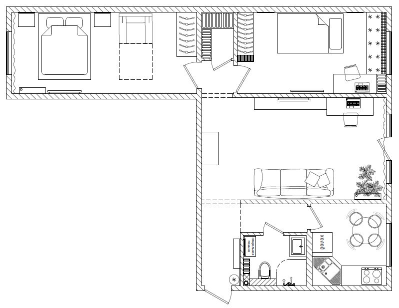
Квартира в 9-м микрорайоне — это вторичное жилье. Наши Заказчики обратились в нашу студию дизайна с просьбой разработать дизайн приобретенной квартиры в современном стиле. При обсуждении проекта перед дизайнерами сразу были поставлены две очень важные задачи. Первая задача – никакой перепланировки и вторая задача — это уложиться в невысокий бюджет на реализацию проекта.
Дизайнеры студии учли все пожелания наших Заказчиков. К сожалению очень маленькая кухня внесла свои коррективы при планировании. Чтобы не загромождать пространство Заказчики приобрели холодильник, который расположен под столешницей рабочей зоны. Микроволновую печь также решили разместить под столешницей, чтобы оставить максимально места на рабочей поверхности. Это очень важный момент, поскольку хозяин квартиры очень любит готовить для своей любимой семьи. Обеденный стол со стеклянной столешницей визуально не загромождает пространство и без того маленькой кухни. Интересное решение принято по стульям в кухне. Складные стулья, использованные в проекте, при необходимости можно легко убрать в кладовую, что позволит выиграть в пространстве кухни.
Гостиная комната совершенно не перегружена, но в ней есть все, что необходимо нашим Заказчикам. Мягкий, комфортный и большой диван позволят собраться всей семье за просмотром телевизора или просто пообщаться. Рабочее место для главы семьи позволит поработать, когда вся семья уже отдыхает.
В небольшой спальне, для 10 летней дочери, мы разместили все что необходимо для хозяйки комнаты. Любовь к Парижу отразилась в фотообоях. Отличное место для отдыха и чтения предусмотрели вдоль окна для маленькой хозяйки.
Спальня родителей сделана в спокойной светло-серой гамме. Пока сынишка маленький для него разместили в спальне родителей кресло-кровать.
Площадь: 58 м2
Отделка: вторичное жильё
Стиль: современный
Подробнее с нашими услугами можно ознакомиться здесь. Наши работы также представлены в Instagram.














